发布时间:2022-03-26 11:08:00 点击:4700
导语:装饰施工单位中标以后,进场与土建单位移交的轴线或主控制线以及各楼层标高控制线。结合各层建筑总平面图,在现场分五个阶段草测的步骤叫做五步放线法。围绕五步放线进行施工故叫做五步施工法。
什么是五步放线法?
装饰施工单位中标以后,进场与土建单位移交的轴线或主控制线以及各楼层标高控制线。结合各层建筑总平面图,在现场分五个阶段草测的步骤叫做五步放线法。围绕五步放线进行施工故叫做五步施工法。
五步放线的目的:
五步放线的目的是核对装饰施工各层楼层平面总平面图上理论尺寸与现场实际是否相符合。现场是否有其他障碍物等。
通过核对,并记录在总平面图上,为深化图纸调整平面图,掌握了第一次实际数据。为设计师调整和确认设计方案提供了可靠的依据。避免仓促上陈所引起的不良后果。特别是工期特别紧的项目能缩短工期。
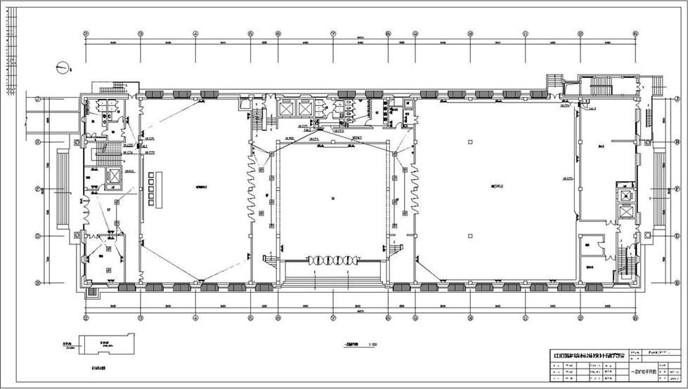
五步放线具体步骤(一)
1、各层总平面图主控线、轴线、完成面控制线(轴距减1m)、墙面四周顶面完成面向上250mm为机电标高线、地面±0.00水平线、各层1米水平线,为第一步放线。(根据楼层和班组可以分两组以上平行放线,分两组平行放线,再根据班组人数分组,形成流水放线)
装饰进场时现场状况
说明:此阶段是放线最佳时期,这时空调、给排水、暖通、强弱电单位均未进场施工,土建二次结构又进入尾声,工地障碍物少,有利于经纬仪器、水准仪等仪器放线施工(减少协调)。
此阶段是主控线、标高线移交、抢放主控线、水平线、轴线或一米的控制线。
以土建平移出来的主控线定位控线,以主控线复合总包轴线(检查总包轴线是否与理论轴线有误差),如有误差,以我主控线为主。
或者重新弹轴线,从轴距减1米,弹墙面控制线,轴线从地面用红外线垂直水准仪移到墙面有条件。以一米水平线弹出顶面完成面线和机电控制线。一般在吊顶完成面250mm以上根据灯具型号而定,此尺寸测试吊顶造型及隐蔽地面±0.00线测土建高差。
▲坐标控制线
▲轴线及一米线
▲完成面线
▲顶面及机电完成面线
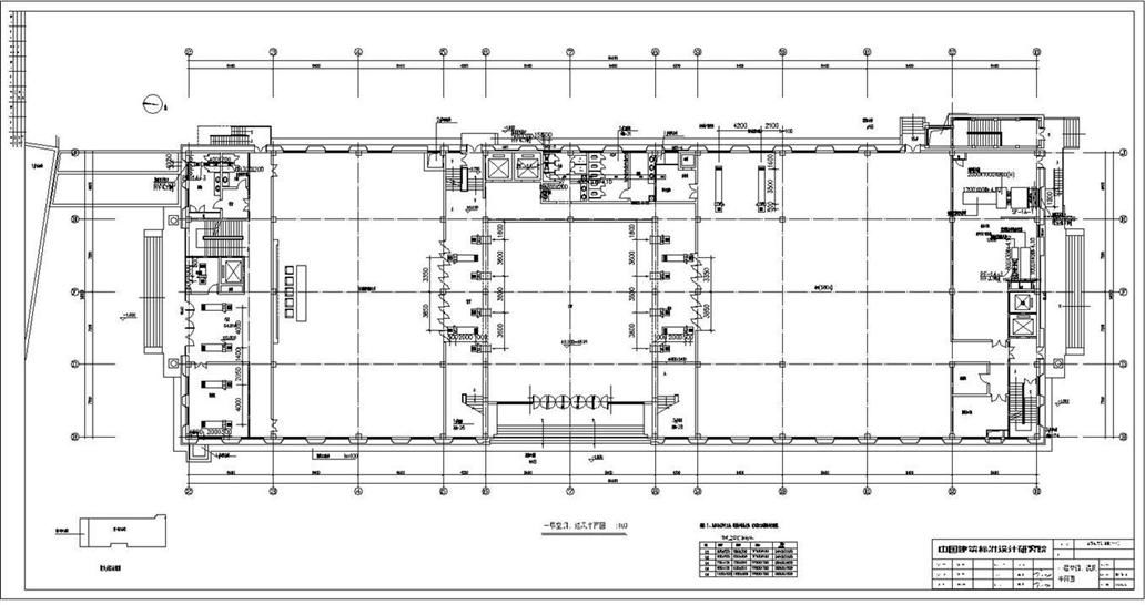
五步放线的具体步骤(二)
1.各层各区域墙面四周顶面完成面向上250mm机电标高线、地面±0.00水平线。瓦工粉刷完成面线(卫生间、厨房间、服务间、乳胶漆、窗套线基层);油工粉刷完成面线(粉刷石膏);木工软包、硬包、木饰面完成面线。云石工干挂大理石完成面线,主墙面结合节点草测线,称第二步放线,也叫做湿作业施工线。
2.粉刷完成面,测土建墙面平整度和方整度,是否满足粉刷完成面尺寸。若不满足完成面尺寸,需提供给设计方进行平面图调整。
图片
▲卫生间地面定位放线及石材分割
图片
▲墙面石材排版及给排水定位位
五步放线法(三)
1.根据草测线的结果,供深化设计师局部调整平面图后,放造型线,称第三步放线。
▲完成面线
2.走道控制线以走道控制线采用平移法弹出走道完成面以及与走道有关的门,内外墙完成面线。所以所有与走道有关的门内线必须统一,以便成品化门统一尺寸一致加工。
3.造型完成面线,对不确定模凌两可的造型留活口,不影响大面积施工。
▲造型完成面线
▲造型完成面线
▲造型完成面线
▲机电点位现场定位
五步放线的具体步骤(四-五)
1.以走道中间控制线为基准线,调整与走道有关的门套内、外侧的墙面完成面线定门套,此种放线方法称为平行放线法为第四步放线。在施工中也叫走道施工法,门套成品化施工法。
▲柱子完成面线
▲走道垂直总控制线
五步放线的具体步骤(五)
第五步放线又称二次放线。主要是对原墙、顶、地面线因长期磨损或被基层覆盖后需进行二次放线(甚至三次放线)。概括来讲二次放线包含地面找平后的放线、基层完成后的跟进放线、卫生间防水完成后的放线等几个方面。
五步放线前期准备
五步放线的前期准备工作分为3部分
1.仪器、工具、材料、人员:
(1)仪器:经纬仪、水平仪、红外线、垂直水平仪、100m测量皮尺、7.5m钢卷尺、200m红外线测距仪、三凌镜等都用于测量。
(2)工具:墨斗、钩鱼丝线(红色、蓝色)都用于弹线。
(3)材料:大锤、小锤、铁楸、木工板、150*150*3铁板、30*30*3角铁、 Ø8*40膨胀螺栓、划瓷砖的金刚钻刀头,冲击钻、电焊机、切割机等都用于放线定固。
(5)人员:施工员、现场总带班、瓦油木带班、放线员、弹线工2人、扫地清理人员2人(此放线5人为一组,根据工作量的大小可增加2-6组人员)。
▲预先刻制喷绘面板
仪器用途:
红外线:是用来复合水准仪抄平是否误差。如没有用木抖弹1m水平线,红外线远距离线粗以中为准
水准仪:找平层1m水平线,夹在中间以减少误差。
2.办公室准备工作:
(1)阅读核对并审核所有的建筑施工图纸,防止互相矛盾,尺寸差错、(因为所有的水电、暖、消防这些单位设计的图纸上,都是按照建筑总平面和建筑立面。建筑剖面设计的有在同一平面位置。且空间也在同一位置,也没有考虑这些设备的保温,支架节点的空间、检修位置也没有考虑,一切等待装修单位深化图纸。施工过程中有问题等待设计变更、协调时间长)。
(2)主要阅读这些图纸的建筑总平面图,周围的环境,以及是定位的已知条件,如红线定位(外幕墙装饰主高);方格网定位(红线方格网是确认该建筑的位置)总平面图方格网是轴线位置,即柱子在网格交叉位置,导线也称坐标线,也称总控线。
并看总说明以了解该建筑物的首层±0.00的绝对标高值数(限高以±0.00开始)。
(3)其次看建筑施工图的总平面,建筑立面,建筑剖面图。但详图可以暂时不看。待窗台和窗帘盒深化图纸时看。这些图纸往往是搞装饰的人员不看的认为对我们装修没有用。再看结构施工图,主要是基础图,主体结构平面、剖面图等构件详图之类可以先不看。
最后初步的阅读一下相关水、电、暖通安装施工图。他们的出入口与土建和装饰的关系,至于内部通线、穿管的详图,开始时也可以不看。
(4)看图时要建筑与结构对照、土建与设备安装对照,这些时间是项目部组织人员,忽略的关键时间之一,最好平面图,建筑剖面图、机电安装剖面图)以达到不矛盾,无差错,才算阅图准备工作完毕。
(5)准备施工测量放线的有关资料。即在电脑里模拟放线定位。与计划的安排,要把自己制定的测量放线计划安排在多个土建移交各层±0.00标高、主控线和轴线。
(6)研究该建筑的施工放线的程序及施工计划。根据工程施工组织设计中进度分部分项工程之前及穿插在施工之中的过程,这就叫五步放线法。
(7)要安排测量放线人员的搭配,以及需要的仪器、工具、材料。模拟平面图、立面图的准备。对大型的工程,要做到心中有数,放线人员,带班,总代班也要做到人人有数,甚至包工头即老板也要心中有数。达到施工员一人领导,互相配合,有条不紊地工作。
▲建筑平面图
图片
▲建筑外立面
建筑外立面的左侧是各楼层的标高总高,以土建移交的首层±0.00标高,可以是各楼层±0.00的标高,及1m水平线。此1m水平线最好定在楼梯口或者电梯口。另外此1m水平线及层高非常重要,它是深化设计师深化楼梯的主要数据,并且也是测土建现场尺寸是否与设计师的理论尺寸相符。
建筑平面图是一个理论图纸,通过现场复试是否有误。
▲暖通布置图
▲插布置面
▲照明布置图
用途:办公室工作准备,了解机电顶面灯具照明;地面地插与墙面插座。工期紧的项目,这个方法可行,为下一道施工工序争取时间。
3.现场准备工作
1)根据建筑总平面图到现场草测,核对总平面图的理论尺寸与现场是否吻合。现场上设计变更是否更改等。
2)与土建到现场移交的基准点、总控线或轴线。
3)人员进场协调影响我单位放线的障碍物。
4.控制线的确认
主控制线就是坐标,坐标是测量中用来确定施工轴线位置及建筑物位置的,是人们假设的线。有任何装修疑难,请点击关注红蚂蚁装饰官网了解更多吧!(https://www.hmyzs.com/)
请认真填写您的正确信息
2025-09-25 14:22:00
北欧风格以其独特的自然色调和简约美学,成为全球最受欢迎的设计风格之一。这种起源于北欧国家的设计理念,不仅反映了当地的自然环境特点,更体现了一种追求功能性与美感平衡的生活哲学。本文将详细探讨北欧风格的主要颜色基调及其核心特点,带您全面了解这一经典设计风格的魅力所在。
2025-09-24 15:08:00
家具是家庭中不可或缺的东西,大部分人选择家具都会根据居室的装修风格选,其中,选择现代简约风装修的人有很多,那么大家知道在家具的选择上应该如何进行呢?下面就与小编一起看看现代简约风格家具特点有哪些,现代风家具颜色怎么选,分分钟教你学会。
2025-09-23 14:39:00
日式风格以其独特的自然色调和深邃的禅意美学,成为全球最受欢迎的设计风格之一。这种起源于日本的设计理念,不仅反映了当地的自然环境特点,更体现了一种追求功能性与精神境界平衡的生活哲学。本文将详细探讨日式风格的主要颜色基调及其核心特点,带您全面了解这一经典设计风格的魅力所在。
2025-09-22 14:44:00
后现代设计中的装饰是一种什么风格呢?这几年后现代的装修风格非常的流行,相信这些人对于后现代风格装修多少钱应该很想了解。那么接下来小编就带你来了解下后现代风格,看了你一定也会喜欢上。
2025-09-21 15:59:00
书房除了正确选择灯具外,灯光布置也很重要,灯光的布置需要综合考虑实用性、舒适度和氛围营造,通过合理的灯光设计,打造一个适合学习和工作的环境。下面小编就为大家分享书房用什么灯比较好,书房灯光怎么布置。
2025-09-20 14:16:00
现代简约家具风格很受欢迎,越来越多的人追捧,简约家具中风格又带有强烈的线条美。那么中国现代家具的主要特征有哪些呢?为啥越来越多的人追捧,为了让大家更好的了解中国现代家具,下面就为大家详细的来介绍中国现代家具的主要特征。