500m²现代简约 | 简单实用的家庭装修设计

发布时间:2022-03-08 14:27:00 点击:2056

导语:500m²现代简约 | 简单实用的家庭装修设计

项目缘起

业主是一位私营业主,起初找到我们时,客户已经再其它公司看过了很多,而且也有了意向的公司,但是客户对方案一直不是特别满意。

找到我们后,业主表达了很多生活的细节想法,我们在生活理念得沟通上达到了高度的契合。

在业主的大力配合和参与下,我们经过多回合的方案沟通,最终定稿完成了一套当下的完美新居

500m²现代简约 | 流淌在家中的艺术


风格定位

现代简约风格。对于此案设计师认为,过度的装饰堆砌,无论对空间设计本身还是房主的使用感受上,都是一种无形的压力,时间在最终会筛除掉那些繁杂冗长的装饰,简洁与自然是设计的最终归宿。

500m²现代简约 | 流淌在家中的艺术


项目信息

设计丨Designer:范永杰

地址丨Address :九里香堤

机构丨Company :红蚂蚁装饰

面积丨Square: 500㎡


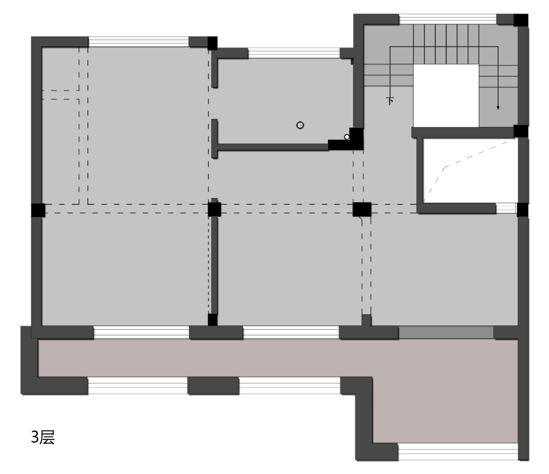
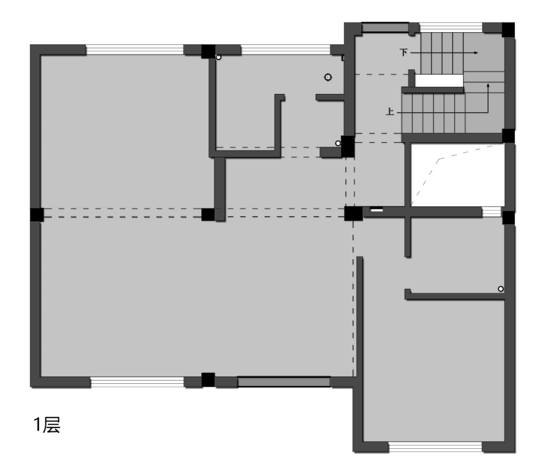
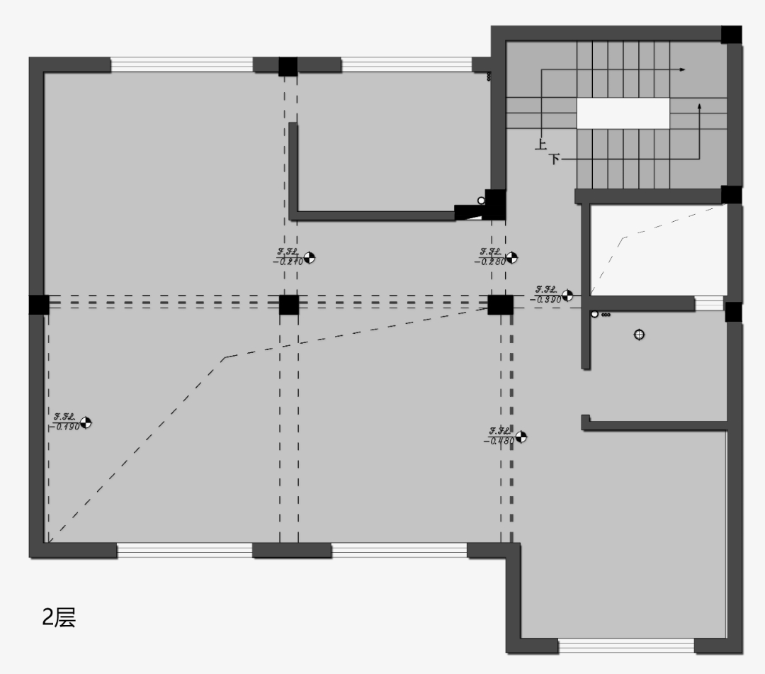
户型规划

500m²现代简约 | 流淌在家中的艺术


500m²现代简约 | 流淌在家中的艺术


500m²现代简约 | 流淌在家中的艺术


500m²现代简约 | 流淌在家中的艺术


△原始结构图

500m²现代简约 | 流淌在家中的艺术


500m²现代简约 | 流淌在家中的艺术


500m²现代简约 | 流淌在家中的艺术


500m²现代简约 | 流淌在家中的艺术


△平面设计图


实景展示

500m²现代简约 | 流淌在家中的艺术


500m²现代简约 | 流淌在家中的艺术


500m²现代简约 | 流淌在家中的艺术


500m²现代简约 | 流淌在家中的艺术


500m²现代简约 | 流淌在家中的艺术


客餐厅是横向错层格局,整个空间都在一个开放的区域内,为主人带来了一个宽敞舒适的居住体验。

500m²现代简约 | 流淌在家中的艺术


沙发墙后方不靠墙,增加了空间的宽敞度,也让空间更加情趣。

500m²现代简约 | 流淌在家中的艺术


500m²现代简约 | 流淌在家中的艺术


深灰色皮质沙发,电视背景墙面经典的黑白色岩板和木饰面的搭配,也让空间更加有艺术感。

餐厅在厨房操作台旁边,错层的户型空间,在合理的布局下,也是营造出一个文艺优雅的生活体验。

500m²现代简约 | 流淌在家中的艺术


500m²现代简约 | 流淌在家中的艺术


500m²现代简约 | 流淌在家中的艺术


500m²现代简约 | 流淌在家中的艺术


金属色的圆餐桌,搭配灰色布艺餐椅,餐台上摆上鲜花花篮,还有精致的餐具,也让生活更加精致有仪式感。

500m²现代简约 | 流淌在家中的艺术


500m²现代简约 | 流淌在家中的艺术


吧台后边的木色定制柜,吧台挨着中岛台摆放,上方三盏吊灯悬挂,台面上布置花瓶与装饰品,也营造出一种别样情趣的空间体验。

500m²现代简约 | 流淌在家中的艺术


吧台后的是橱柜操作台,木饰面+木色柜子组合,也是带来了实用简洁的功能体验。

500m²现代简约 | 流淌在家中的艺术


500m²现代简约 | 流淌在家中的艺术


书房的设计清新雅致,不需要过多的点缀,在家的空间内保留一片能思考的净土。大块面的玻璃窗也让空间的采光更加通透。

500m²现代简约 | 流淌在家中的艺术


500m²现代简约 | 流淌在家中的艺术


卧室采用了无主灯设计,墙身使用了深蓝色的墙面漆,给人以内心的平静,靠床放置五斗柜,也让卧室空间更加高级有艺术气息。

500m²现代简约 | 流淌在家中的艺术


主卫空间设置了浴缸、洗手盆与马桶,墙面以砖粘贴,洗手盆是陶瓷材质的定制设计,墙面方形的洗漱镜带有背光设计,让卫浴空间也显得极简而高级。

500m²现代简约 | 流淌在家中的艺术


浴缸在大理石砖的包围下,在浴缸底部、天花上加入暗藏灯带,让卫浴氛围更加明亮舒适。

500m²现代简约 | 流淌在家中的艺术


次卧也是个方正的空间,床靠墙摆放,床后墙面使用青灰色墙面漆,床两侧的床头柜上方都装有一个吊灯,让空间紧凑而实用,增加了空间的整体艺术感。

500m²现代简约 | 流淌在家中的艺术


地面垫上马赛克的方形地毯,搭配上胡桃木色的橱柜,也让空间更加有活力感。

500m²现代简约 | 流淌在家中的艺术


次卫空间设置了淋浴房、洗手盆与马桶,墙面以深黑色砖粘贴,让整个空间跟白色的陶瓷材质的相互呼应出彩,墙面方形的洗漱镜带有背光设计,让卫浴空间也显得极简而高级。

500m²现代简约 | 流淌在家中的艺术


500m²现代简约 | 流淌在家中的艺术


庭院的绿植经过精心的修剪,在惬意的午后来上一杯咖啡,应该是生活中最惬意的事了吧。


免费

免费申请户型平面规划

请认真填写您的正确信息

captcha

热门文章

获取报价-红蚂蚁装饰股份有限公司官网-苏州装修公司-苏州别墅装修设计-别墅装潢家装公司
预约设计师
captcha

VIP客户服务:4008-512-888

预约
captcha

VIP客户服务:4008-512-888

回顶部